11060 Evening Hunt RoadFranktown, CO 80116




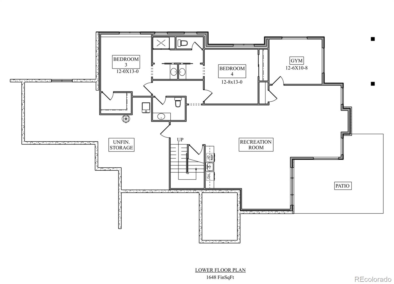
End of June completion! Welcome to The Carmith Circle by GMC Construction—an exceptional modern farmhouse on 2.44 acres in Fox Hill, Franktown’s most sought-after acreage communities in Douglas County, Colorado. Blending luxury living with a private country setting, this custom home offers 4 beds, 5 baths, and over 4,000 fin square feet designed for both everyday comfort and elevated entertaining. A stunning courtyard-style entry with stonework and outdoor fireplace sets the tone, leading to a covered front porch and into a light-filled interior. Inside, a glass-enclosed home office provides the perfect remote work space, while the vaulted great room with fireplace anchors the home with warmth and architectural detail. The open-concept layout flows seamlessly into the dining area and out to a covered deck with sliding glass doors, ideal for Colorado indoor-outdoor living. The chef’s kitchen is designed to impress with a large center island, abundant storage, elevated cabinetry, and a spacious walk-in pantry—perfect for both daily living and entertaining. The thoughtfully designed main level also includes a private primary suite with spa-style bath, dual vanities, & expansive walk-in closet, along with a guest en-suite, mudroom with utility sink, and access to an oversized 3-car garage with workspace. The finished lower level expands your living space with a large recreation room—ideal for a media room, game area, home gym, or entertaining space. Two additional bedrooms & a connecting 3/4 bath provide comfort for guests, while unfinished space offers flexibility for a future fifth bedroom, additional bath, or storage. *FUTURE OUTBUILDING DESIGNED* Additional highlights include 1G fiber optic internet, offering a perfect balance of modern connectivity & serene acreage living. Located just minutes from Parker, Castle Rock, and everyday amenities, Fox Hill delivers the space, privacy, and convenience in one of the Denver Metro area’s premier custom home communities.
| 2 months ago | Listing updated with changes from the MLS® | |
| 2 months ago | Listing first seen on site |
The content relating to real estate for sale in this Web site comes in part from the Internet Data eXchange ("IDX") program of METROLIST, INC., DBA RECOLORADO real estate listings held by brokers other than RE/MAX Alliance are marked with the IDX Logo. This information is being provided for the consumers' personal, non-commercial use and may not be used for any other purpose. All information subject to change and should be independently verified.